堺市堺區的房產
-
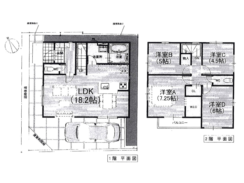
OrientCity 七道
靠近車站・購物中心步行圈內,生活便利,自由設計
■房產類型:新建一戶建■房產售價: 2,980萬日元~■地址:堺市堺区北旅籠町西1丁■交通: 南海本線「七道」歩5分■土地面積: 66.94㎡ ■建築面積: 84.00㎡ ~■格局: 4LDK
-
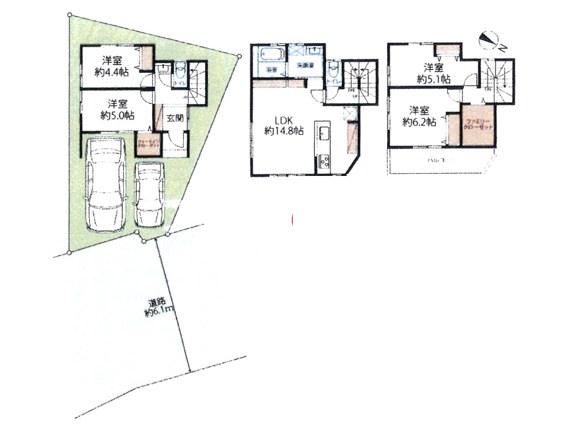
OrientCity 寺地町
全5区画,车站・超市步行圈内,生活便利,自由设计
■房產類型:新獨立式住宅■房產售價:2,780萬日元~■地址:堺市堺区南半町東1丁■交通:阪堺線「御陵前」 歩2分 ■土地面積:70.00㎡ ~ ■建築面積:87.00㎡~■格局:4LDK
-
堺市堺区出島海岸通2丁
2026年4月下旬建造,靠近車站,超市步行圈內,生活便利,英彰小学校区
■房產類型:新建一戶建■房產售價: 3,280萬日元■地址:堺市堺区出島海岸通2丁■交通:南海本線「湊」歩4分 ■土地面積: 64.29㎡ ■建築面積:99.22㎡■格局:4LDK
-
堺市堺区南島町6丁
2026年5月建造,車站・超市步行圈內,生活便利
■房產類型:新建一戶建■房產售價: 4,798萬日元■地址: 堺市堺区南島町6丁■交通: 南海本線「七道」歩13分■土地面積: 105.58㎡ ■建築面積: 105.89㎡■格局: 5LDK
-
堺市堺区寺地町西2丁 1期 1号棟
2026年2月新建,車站・超市步行2分,生活便利,英彰小学校步行5分
■房產類型:新建一戶建■房產售價: 4,498萬日元■地址: 堺市堺区寺地町西2丁■交通: 阪堺線「寺地町」歩2分■土地面積: 101.72㎡ ■建築面積: 98.82㎡■格局: 4LDK
-
堺市堺区寺地町西2丁 1期 2号棟
2026年2月新建,車站・超市步行2分,生活便利,英彰小学校步行5分
■房產類型:新建一戶建■房產售價: 4,448萬日元■地址: 堺市堺区寺地町西2丁■交通: 阪堺線「寺地町」歩2分■土地面積: 100.67㎡ ■建築面積: 96.07㎡■格局: 4LDK
-
堺市堺区山本町2丁
新建一戶建・可即刻交付,超市步行5分,購物方便,可隨時看房
■房產類型:新獨立式住宅■房產售價: 2,680萬日元■地址:堺市堺区山本町2丁■交通:南海本線「堺」歩14分■土地面積: 66.84㎡ ■建築面積: 91.53㎡■格局: 3LDK
-
堺市堺区老松町2丁
2025年11月新建・四室一廳・全居室2面採光,隨時看房,車站・超市・便利店・保育園・幼稚園・小學校步行圈內
■房產類型:新建一戶建■房產售價:3,698萬日元■地址: 堺市堺区老松町2丁■交通:阪堺電気軌道阪堺線「東湊」駅歩6分■土地面積: 84.41㎡ ■建築面積: 94.18㎡■格局: 4LDK
-
堺市堺区五月町
全新翻修完成・鋼架造,靠近車站・超市,生活便利,榎小学校・三国丘中学校區房
■房產類型:中古一戶建■房產售價: 2,780萬日元■地址: 堺市堺区五月町■交通: 南海高野線「堺東」歩5分■土地面積: 41.02㎡ ■建築面積: 115.88㎡■格局: 4LDK
-
堺市堺区南旅篭町西3丁
角地・日照良好,車站・超市步行5分,生活便利,可自住,可租賃
■房產類型:中古一戶建■房產售價: 1,200萬日元■地址: 堺市堺区南旅篭町西3丁■交通: 南海本線「湊」歩5分■土地面積: 37.48㎡ ■建築面積: 64.68㎡■格局: 6DK
-
堺市堺区旭ヶ丘北町2丁
2026年3月裝修・看房活動開展中,全電化住宅・太陽光發電板,即刻交付
■房產類型:中古一戶建■房產售價: 3,199萬日元■地址: 堺市堺区旭ヶ丘北町2丁■交通: JR阪和線「上野芝」歩20分■土地面積: 108.69㎡ ■建築面積: 92.74㎡■格局: 4LDK
-
堺市堺区浅香山町1丁
2026年1月裝修・全電化住宅・看房活動開展中,車站・超市・教育設施,全部在步行圈內,即刻交付
■房產類型:中古一戶建■房產售價: 3,180萬日元■地址: 堺市堺区浅香山町1丁■交通: JR阪和線「浅香」歩7分■土地面積: 82.39㎡ ■建築面積: 95.16㎡■格局: 4LDK
-
ステュディオ堺フェニックス
換房東物件・收益率8.88%,車站・超市步行3分,朝東南向・日照良好
■房產類型:公寓■房產售價: 480萬日元■地址: 堺市堺区竜神橋町2丁■交通:南海本線「堺」歩3分■專有面積:16.32㎡
-
御陵前ハイツ
換房東物件・表面利潤回利10.55%,裝修完成,車站步1分,生活設施全部在步行圈內
■房產類型:公寓■房產售價:1,080萬日元■地址:堺市堺区南半町東1丁■交通:阪堺線「御陵前」歩1分■專有面積:84.11㎡
-
堺市堺区南清水丘2丁
2025年6月建造・1棟公寓,預想年收249.6萬日元・预想回利6.74%,車站・超市步行圈内,生活便利
■房產類型:收益物件■房產售價: 850萬日元■地址: 堺市堺区南清水丘2丁■交通: 南海高野線「浅香山」歩8分■土地面積: 52.90㎡■建築面積:108.44㎡■格局:2DK×3室
-
堺市堺区住吉橋町1丁
看房活動開展中,車站步行4分,超市步行5分,生活便利,作為收益物件也很推薦
■房產類型:聯排住宅■房產售價: 850萬日元■地址: 堺市堺区住吉橋町1丁■交通: 南海本線「堺」歩4分■土地面積: 46.44㎡■建築面積:79.41㎡■格局:4DK
-
堺市堺区百舌鳥夕雲町1丁
無建築條件・住宅地,超市步行3分・车站步行7分,生活便利
■房產類型:土地■房產售價: 430萬日元■地址: 堺市堺区百舌鳥夕雲町1丁■交通: JR阪和線「百舌鳥」歩7分■土地面積: 50.62㎡
-
堺市堺区石津町3丁 1期 1号地
無建築條件土地・住宅地,車站・超市步行圈內
■房產類型:土地■房產售價: 1,550萬日元■地址: 堺市堺区石津町3丁■交通:阪堺線「石津」歩13分■土地面積: 70.42㎡
-
堺市堺区神石市之町
無建築條件・住宅地,嫻靜的住宅地,車站・超市步行圈內,生活便利
■房產類型:土地■房產售價: 200萬日元■地址: 堺市堺区神石市之町■交通:JR阪和線「津久野」歩14分■土地面積: 42.92㎡
堺市西區的房產
-
堺市西区堀上緑町2丁
2025年7月建造・看房活動開展中,朝南向・日照良好,超市步行圈內,購物方便
■房產類型:新建一戶建■房產售價: 3,380萬日元■地址: 堺市西区堀上緑町2丁■交通: JR阪和線「津久野」歩24分■土地面積: 81.57㎡■建物面積: 107.63㎡■格局: 4LDK
-
堺市西区浜寺昭和町2丁
令和7年12月建造・新建戶建四室一廳,浜寺公園步行4分,便利店・超市・教育設施步行圈內。生活便利
■房產類型:新建一戶建■房產售價: 4,198萬日元■地址: 堺市西区浜寺昭和町2丁■交通: 南海本線「浜寺公園」駅歩3分■土地面積: 114.28㎡■建物面積: 88.39㎡■格局: 4LDK
-
堺市西区浜寺石津町西4丁 1期 1号地
2026年1月建造・看房活動開展中,西南角地・日照良好,車站・超市步行圈內,生活便利
■房產類型:新建一戶建■房產售價: 3,398萬日元■地址: 堺市西区浜寺石津町西4丁■交通: 南海本線「石津川」歩9分■土地面積: 98.01㎡■建物面積: 93.56㎡■格局: 4LDK
-
堺市西区浜寺諏訪森町東3丁 1号地
2025奶奶11月建造・看房活動開展中,土地40坪,西南朝向・日照良好,車站・超市步行圈內,生活便利
■房產類型:新建一戶建■房產售價: 4,280萬日元■地址: 堺市西区浜寺諏訪森町東3丁■交通: 南海本線「諏訪ノ森」歩8分■土地面積: 133.68㎡■建物面積: 98.82㎡■格局: 4LDK
-
堺市西区浜寺諏訪森町東3丁 1期 1号棟
2026年6月建造,嫻靜的住宅地,車站・超市步行7分,生活便利
■房產類型:新建一戶建■房產售價: 4,898萬日元■地址: 堺市西区浜寺諏訪森町東3丁■交通: 阪堺線「船尾」歩4分■土地面積: 149.08㎡■建築面積:101.01㎡■格局:4LDK
-
堺市西区浜寺諏訪森町東3丁 1期 2号棟
2026年6月建造,嫻靜的住宅地,車站・超市步行7分,生活便利
■房產類型:新建一戶建■房產售價: 4,398萬日元■地址: 堺市西区浜寺諏訪森町東3丁■交通: 阪堺線「船尾」歩4分■土地面積: 166.74㎡■建築面積: 100.19㎡■格局:4LDK
-
堺市西区浜寺諏訪森町東3丁 4号地
2025年11月建造・看房活動開展中,土地39坪,西南角地・日照良好,車站・超市步行圈內,生活便利
■房產類型:新建一戶建■房產售價: 4,380萬日元■地址: 堺市西区浜寺諏訪森町東3丁■交通: 南海本線「諏訪ノ森」歩8分■土地面積: 131.22㎡■建築面積:99.63㎡■格局:4LDK
-
堺市西区上野芝向ヶ丘町4丁
換房東物件・表面利潤回利8%,嫻靜的住宅地,車站・超市步行圈內
■房產類型:中古一戶建■房產售價: 1,080萬日元■地址: 堺市西区上野芝向ヶ丘町4丁■交通:JR阪和線「上野芝」歩14分■土地面積: 68.00㎡■建物面積: 82.62㎡■格局: 5DK
-
堺市西区浜寺石津町東4丁
車站・超市步行圈內,生活便利,帶庭院的平層建,可內部觀覽
■房產類型:中古一戶建■房產售價: 280萬日元■地址: 堺市西区浜寺石津町東4丁■交通: 阪堺線「石津」歩8分■土地面積: 70.30㎡■建物面積: 28.27㎡■格局: 2K
-
堺市西区浜寺船尾町西1丁
裝修完成・看房活動開展中・即刻交付,全電化住宅,車站・超市步行圈內,生活便利,小學校步行4分
■房產類型:中古一戶建■房產售價: 1,780萬日元■地址: 堺市西区浜寺船尾町西1丁■交通: 阪堺線「船尾」歩9分■土地面積: 45.51㎡■建物面積: 72.15㎡■格局: 4DK
-
堺市西区草部
2026年1月裝修・看房活動開展中,角地・日照良好,超市步行圈內,購物方便,停車位3台
■房產類型:中古一戶建■房產售價: 2,898萬日元■地址: 堺市西区草部■交通: JR阪和線「津久野」巴士5分■土地面積: 100.63㎡ ■建物面積: 95.98㎡■格局: 3LDK
-
堺市西区草部
2026年2月裝修・看房活動開展中,超市步行7分,購物方便,即刻交付
■房產類型:中古一戶建■房產售價: 2,150萬日元■地址: 堺市西区草部■交通: 南海泉北線「泉ケ丘」巴士12分■土地面積: 100.70㎡ ■建物面積: 85.86㎡■格局: 3LDK
-
堺市西区草部
裝修完成物件・看房活動開展中,超市步行圈內,購物方便,全電化・太陽能發電係統
■房產類型:中古一戶建■房產售價: 2,099萬日元■地址: 堺市西区草部■交通: 南海泉北線「深井」巴士21分■土地面積: 80.17㎡ ■建物面積:84.64㎡■格局: 3LDK
-
津久野台ファミリーマンションA棟
可隨時看房・即刻交付,朝南向陽台,超市・教育設施步行圈內,作為收益物件也很推薦
■房產類型:公寓■房產售價: 198萬日元■地址:堺市西区平岡町■交通:JR阪和線「津久野」徒歩21分■專有面積:45.95㎡■格局:3DK
-
堺市西区浜寺昭和町4丁
車站步行2分的店鋪式住宅,土地44.69坪,用作新建戶建用地和翻新物件都可,超市步行8分
■房產類型:中古一戶建■房產售價: 2,280萬日元■地址: 堺市西区浜寺昭和町4丁■交通: 南海本線「浜寺公園」歩2分■土地面積: 147.76㎡■建物面積: 152.56㎡
堺市東区的房产
-
堺市東区北野田2期1号
2026年2月建造・看房活動開展中,全電化・步入式衣帽間,超市・醫院步行圈內
■房產類型:新建一戶建■房產售價: 3,898萬日元■地址:堺市東区北野田■交通:南海高野線「北野田」駅歩12分■土地面積: 93.48㎡■建物面積: 87.77㎡■格局: 3SLDK
-
堺市東区野尻町 1期 1号地
2025年11月建造・看房活動開展中,超市步行5分,購物方便,全電化
■房產類型:新建一戶建■房產售價: 3,298萬日元■地址: 堺市東区野尻町■交通: 南海高野線「初芝」歩10分■土地面積: 90.81㎡■建物面積: 100.19㎡■格局: 4LDK
-
堺市東区北野田
看房活動開展中,超市步行7分,購物方便,小中學校步行圈內
■房產類型:中古一戶建■房產售價: 1,930萬日元■地址:堺市東区北野田■交通: 南海高野線「北野田」歩13分■土地面積: 79.61㎡■建物面積: 117.59㎡■格局: 4LDK
-
堺市東区菩提町5丁
看房活動開展中,車站・超市・教育設施,全部在步行圈內,即刻交付
■房產類型:中古一戶建■房產售價: 480萬日元■地址:堺市東区菩提町5丁■交通: 南海高野線「初芝」歩13分■土地面積: 55.98㎡■建物面積: 66.23㎡■格局: 5K
堺市南区的房产
-
OrientCity 泉ケ丘
可建造平層建和ZEH住宅,土地最大41坪,購物設施・教育設施在步行圈內,全20區畫自由設計
■房產類型:新建一戶建■房產售價: 3,480萬日元~■地址:堺市南区竹城台3丁■交通:南海泉北線「泉ケ丘」歩19分■土地面積: 101.10㎡ ~■建築面積: 88.00㎡ ~■格局: 3LDK~
-
OrientCity 光明池
土地最大41坪,嫻靜的住宅地,步行圈內商業設施充實,自由設計
■房產類型:新建一戶建■房產售價: 3,880萬日元~■地址: 堺市南区鴨谷台1丁■交通: 南海泉北線「光明池」歩12分■土地面積: 130.06㎡ ~■建築面積: 88.00㎡ ~■格局: 3LDK・4LDK
-
堺市南区三原台4丁
新建大平層住宅,嫻靜的住宅地・土地109坪,超市・教育設施,步行圈內,可停車4台
■房產類型:新建一戶建■房產售價: 6,980萬日元■地址:堺市南区三原台4丁■交通:南海泉北線「泉ヶ丘」歩26分■土地面積: 360.36㎡■建築面積:125.45㎡■格局: 3LDK
-
堺市南区槇塚台2丁 6期 1号棟
2025奶奶11月建造・看房活動開展中,土地42坪・嫻靜的住宅地,長期優良住宅認定物件,フラット35S金融機構對應
■房產類型:新建一戶建■房產售價: 3,780萬日元■地址:堺市南区槇塚台2丁■交通: 南海泉北線「泉ケ丘」巴士8分■土地面積: 140.17㎡■建築面積: 105.78㎡■格局: 4LDK
-
堺市南区槇塚台3丁
新建一戶建,嫻靜的住宅地・土地40坪,小學校步行2分,超市步行9分
■房產類型:新建一戶建■房產售價:3,580萬日元■地址:堺市南区槇塚台3丁■交通:南海泉北線「泉ヶ丘」巴士8分■土地面積: 134.07㎡■建築面積: 93.15㎡■格局: 3LDK
-
堺市南区茶山台3丁 1号棟
2026年2月建造,西南朝向・日照良好,嫻靜的住宅地,超市・教育設施步行圈內
■房產類型:新建一戶建■房產售價: 4,448萬日元■地址: 堺市南区茶山台3丁■交通: 南海泉北線「泉ケ丘」歩22分■土地面積: 142.13㎡■建築面積: 101.02㎡■格局: 4LDK
-
堺市南区茶山台3丁 2号棟
2026年2月建造,西南朝向・日照良好,嫻靜的住宅地,超市・教育設施步行圈內
■房產類型:新建一戶建■房產售價: 4,598萬日元■地址: 堺市南区茶山台3丁■交通: 南海泉北線「泉ケ丘」歩22分■土地面積: 155.03㎡■建築面積: 101.85㎡■格局: 4LDK
-
堺市南区赤坂台5丁 1号棟
2025年9月建成・看房活動開展中,朝東南向・日照良好・嫻靜的住宅地・土地43.86坪,購物・上下學方便
■房產類型:新建一戶建■房產售價: 3,398萬日元■地址:堺市南区赤坂台5丁■交通:南海泉北線「光明池」歩30分■土地面積: 145.00㎡■建築面積: 102.67㎡■格局: 4LDK
-
堺市南区高倉台4丁 A号棟
2025年10月建造・看房活動開展中,土地45坪・陷阱的住宅地,超市步行9分,購物方便,停車位3台
■房產類型:新建一戶建■房產售價: 3,890萬日元■地址: 堺市南区高倉台4丁■交通:南海泉北線「泉ケ丘」巴士12分■土地面積: 150.82㎡■建築面積: 98.53㎡■格局: 4LDK
-
堺市南区御池台4丁
新建・建築中,嫻靜的住宅地・土地77坪,超市步行圈內,生活便利,小學校步行8分
■房產類型:新建一戶建■房產售價: 4,580萬日元■地址:堺市南区御池台4丁■交通:南海泉北線「栂・美木多」巴士15分■土地面積: 254.86㎡■建築面積: 94.81㎡■格局: 3LDK
-
堺市南区御池台4丁
嫻靜的住宅地・土地70坪,小學校步行6分,上下學方便,超市步行圈內,生活便利
■房產類型:中古一戶建■房產售價:1,900萬日元■地址:堺市南区御池台4丁■交通:南海泉北線「栂・美木多」巴士15分■土地面積: 234.11㎡■建築面積: 119.58㎡
-
堺市南区深阪南
樣板房裝修,地暖・車庫齊備的4LDK・建築物137㎡,超市・便利店步行2分,購物便利,日照良好
■房產類型:新建一戶建■房產售價:3,580萬日元■地址:堺市南区深阪南■交通:泉北高速線「泉ケ丘」歩16分■土地面積:80.45㎡■建築面積:137.18㎡■格局: 4LDK
-
堺市南区竹城台4丁
土地60坪,鋼架造・建築年數淺・看房活動開展中,超市步行5分,購物方便,小花園空間有,即刻交付
■房產類型:中古一戶建■房產售價: 5,380萬日元■地址:堺市南区竹城台4丁■交通:南海泉北線「泉ケ丘」歩17分■土地面積:199.01㎡■建築面積: 107.71㎡■格局: 4LDK
-
堺市南区赤坂台5丁
土地70坪・嫻靜的住宅地,建築物146㎡・帶庭院住宅,超市步行圈內,購物方便,看房活動開展中
■房產類型:中古一戶建■房產售價: 2,380萬日元■地址:堺市南区赤坂台5丁■交通: 南海泉北線「光明池」巴士8分■土地面積: 233.71㎡■建築面積: 146.23㎡■格局: 5LDK
-
堺市南区高倉台2丁
土地面積超228坪,超大客廳開放感無敵,超市・教育設施步行圈內,生活便利
■房產類型:中古一戶建■房產售價: 3,980萬日元■地址:堺市南区高倉台2丁■交通: 南海泉北線「泉ヶ丘」駅歩17分■土地面積: 755.30㎡■建築面積:135.79㎡■格局: 3LDK
-
堺市南区高倉台2丁
令和7年3月裝修,鋼架混凝土造3層建・土地82坪,車站・超市・教育設施步行圈內,生活便利
■房產類型:中古一戶建■房產售價: 4,100萬日元■地址:堺市南区高倉台2丁■交通: 南海泉北線「泉ヶ丘」駅歩16分■土地面積: 272.35㎡■建築面積: 214.49㎡■格局: 6SLDK
-
堺市南区高倉台4丁
令和8年1月裝修・看房活動開展中,超市・教育設施步行圈內,生活便利
■房產類型:中古一戶建■房產售價: 1,680萬日元■地址:堺市南区高倉台4丁■交通: 南海泉北線「泉ヶ丘」駅歩27分■土地面積: 109.00㎡■建築面積: 93.15㎡■格局: 4LDK
-
堺市南区高倉台4丁
看房活動開展中,22.5貼寬敞大客廳・並列停車位2台,超市・教育設施步行圈內,即刻交付
■房產類型:中古一戶建■房產售價: 2,999萬日元■地址:堺市南区高倉台4丁■交通: 南海泉北線「泉ヶ丘」駅歩26分■土地面積: 755.30㎡■建築面積: 140.97㎡■格局: 4SLDK
-
堺市南区宮山台1期 1号地
無建築條件土地,住宅地交付・土地44坪,超市・便利店步行圈內,生活便利
■房產類型:土地■房產 2,650萬日元■地址: 堺市南区宮山台4丁■交通: 南海泉北線「泉ヶ丘」駅歩27分■土地面積: 147.01㎡
-
堺市南区宮山台1期 2号地
無建築條件土地,住宅地交付・角地・土地45坪,超市・便利店步行圈內,生活便利
■房產類型:土地■房產售價: 2,850萬日元■地址: 堺市南区宮山台4丁■交通: 南海泉北線「泉ヶ丘」駅歩27分■土地面積: 149.27㎡
-
堺市南区庭代台1丁 1号地
無建築條件土地,住宅地交付・土地51坪,超市・便利店・教育設施步行圈內,生活便利
■房產類型:土地■房產售價: 2,400萬日元■地址: 堺市南区庭代台1丁■交通: 南海泉北線「栂・美木多」駅歩29分■土地面積: 170.79㎡
-
堺市南区庭代台1丁 2号地
無建築條件土地,住宅地交付・土地44坪,超市・便利店・教育設施步行圈內,生活便利
■房產類型:土地■房產售價: 2,400萬日元■地址: 堺市南区庭代台1丁■交通: 南海泉北線「栂・美木多」駅歩29分■土地面積: 146.97㎡
-
堺市南区竹城台3丁
無建築條件,土地面積約161.44坪,嫻靜的住宅街
■房產類型:土地■房產售價: 4,200萬日元■地址: 堺市南区竹城台3丁■交通: 南海泉北線「泉ヶ丘」歩16分■土地面積: 533.69㎡
-
堺市南区竹城台3丁
嫻靜的住宅地・無建築條件・土地106坪・住宅地,超市步行4分,購物方便,即刻交付
■房產類型:土地■房產售價: 5,780萬日元■地址: 堺市南区竹城台3丁■交通: 南海泉北線「泉ヶ丘」巴士8分■土地面積: 351.80㎡
-
堺市南区竹城台4丁
無建築條件土地,土地交付・角地・土地92坪,超市步行6分,購物方便
■房產類型:土地■房產售價: 5,680萬日元■地址: 堺市南区竹城台4丁■交通: 南海泉北線「泉ケ丘」歩20分■土地面積: 305.44㎡
-
堺市南区竹城台4丁
朝南向・日照良好・嫻靜的住宅地・土地78坪,超市步行5分,購物方便
■房產類型:土地■房產售價: 4,580萬日元■地址: 堺市南区竹城台4丁■交通: 南海泉北線「泉ケ丘」歩18分■土地面積: 258.19㎡
-
堺市南区竹城台4丁 A号地
無建築條件土地,土地交付・土地46坪,超市步行6分,購物方便
■房產類型:土地■房產售價: 2,780萬日元■地址: 堺市南区竹城台4丁■交通: 南海泉北線「泉ケ丘」歩20分■土地面積: 152.71㎡
-
堺市南区竹城台4丁 B号地
無建築條件土地,土地交付・角地・土地46坪,超市步行6分,購物方便
■房產類型:土地■房產售價: 2,980萬日元■地址: 堺市南区竹城台4丁■交通: 南海泉北線「泉ケ丘」歩20分■土地面積: 152.73㎡
-
堺市南区豊田
眺望・日照良好的土地627.28坪,兩面道路,可分割購入
■房產類型:土地■房產售價: 4,000萬日元■地址: 堺市南区豊田■交通: 南海泉北線「泉ケ丘」歩23分■土地面積: 2,073.68㎡
堺市中區的房產
-
OrientCity 初芝
朝南向・日照良好,超市徒步圈內,購物方便,自由設計的新型獨立式住宅
■房產類型:新獨立式住宅■房產售價: 2,580萬日元~■地址:堺市中区土塔町■交通: 南海高野線「初芝」歩20分■土地面積:61.69㎡■建築面積:87.00㎡ ~■格局:3LDK
-
OrientCity 深井北町
靠近小学校,通学便利,超市在步行圈内,自由设计新式独立式住宅
■房產類型:新獨立式住宅■房產售價:3,580萬日元~■地址:堺市中区深井北町■交通:泉北高速線「深井」歩21分■土地面積:102.00㎡ ~■建築面積:87.00㎡ ~■格局:3LDK~
-
OrientCity 深井北町II
靠近小学校,通学便利,超市在步行圈内,自由设计新式独立式住宅
■房產類型:新獨立式住宅■房產售價:2,580萬日元~■地址:堺市中区深井北町■交通:JR阪和線「上野芝」歩20分■土地面積:65.18㎡■建築面積:87.00㎡ ~■格局:3LDK
-
堺市中区八田北町
新建戶建・可變換室內佈局,超市步行3分,購物方便,大型停車位
■房產類型:新建一戶建■房產售價: 2,780萬日元■地址: 堺市中区八田北町■交通:南海泉北線「深井」歩14分■土地面積: 73.54㎡■建築面積:71.31㎡■格局:3LDK
-
堺市中区八田南之町 1期 1号棟
2026年4月建造,朝南向・日照良好・住宅地,超市・教育設施步行圈內
■房產類型:新建一戶建■房產售價: 3,698萬日元■地址: 堺市中区八田南之町■交通: 南海泉北線「深井」歩23分■土地面積: 92.69㎡■建築面積: 93.32㎡ ■格局: 4LDK
-
堺市中区土師町5丁
2026年4月建造,超市步行7分,購物方便
■房產類型:新建一戶建■房產售價: 3,080萬日元■地址: 堺市中区土師町5丁■交通: 南海泉北線「深井」歩21分■土地面積: 74.00㎡■建築面積:92.73㎡■格局: 4LDK
-
堺市中区堀上町
2026年2月完成,朝南向・日照良好,超市・教育設施步行圈內
■房產類型:新建一戶建■房產售價: 3,480萬日元■地址: 堺市中区堀上町■交通: 南海泉北線「深井」歩19分■土地面積: 81.72㎡■建築面積: 107.23㎡■格局:3LDK
-
堺市中区堀上町
2025年7月建造・看房活動開展中,西南角地・日照良好,超市・教育設施步行圈內
■房產類型:新建一戶建■房產售價: 2,980萬日元■地址: 堺市中区堀上町■交通: 南海泉北線「深井」歩23分■土地面積: 59.99㎡■建築面積: 93.54㎡■格局:3LDK
-
堺市中区東山 1期 1号棟
2026年2月建造,寬敞四室一廳・停車位2台,超市步行圈內,金融機構フラット35S對應
■房產類型:新建一戶建■房產售價: 3,699萬日元■地址: 堺市中区東山■交通: 南海泉北線「深井」歩23分■土地面積: 108.39㎡■建築面積: 96.46㎡■格局:4LDK
-
堺市中区東山 1期 2号棟
2026年2月建造,土地43坪・寬敞四室一廳・停車位2台,超市步行圈內,金融機構フラット35S對應
■房產類型:新建一戶建■房產售價: 3,499萬日元■地址: 堺市中区東山■交通: 南海泉北線「深井」歩23分■土地面積: 143.73㎡■建築面積: 102.28㎡■格局:4LDK
-
堺市中区東山 1期 3号棟
2026年2月建造,土地43坪・寬敞四室一廳・停車位2台,超市步行圈內,金融機構フラット35S對應
■房產類型:新建一戶建■房產售價: 3,299萬日元■地址: 堺市中区東山■交通: 南海泉北線「深井」歩23分■土地面積: 143.83㎡■建築面積: 97.72㎡■格局:4LDK
-
堺市中区深井清水町1期1号
2026年3月建造・四室一廳,超市便利店・小學校步行圈內,生活便利
■房產類型:新建一戶建■房產售價: 4,098萬日元■地址: 堺市中区深井清水町■交通: 南海泉北線「深井」駅歩12分■土地面積: 118.53㎡■建築面積: 99.36㎡■格局:4LDK
-
堺市中区福田
令和8年4月建造,停車位2台,房間內有收納,帶地下收納
■房產類型:新建一戶建■房產售價: 2,980萬日元■地址: 堺市中区福田■交通: 南海高野線「北野田」駅歩28分■土地面積: 93.35㎡■建築面積: 87.48㎡■格局:1SSLDK
-
堺市中区土師町2丁
2025年6月裝修完成・看房活動開展中,超市・教育設施步行圈內,停車位2台,即刻交付
■房產類型:中古一戶建■房產售價: 1,980萬日元■地址: 堺市中区土師町2丁■交通: 南海高野線「白鷺」歩19分■土地面積: 92.52㎡■建築面積: 73.30㎡■格局: 4LDK
-
堺市中区深阪1丁
2025年12月裝修,角地,日照良好,超市・教育設施步行圈內,生活便利
■房產類型:中古一戶建■房產售價: 2,980萬日元■地址: 堺市中区深阪1丁■交通: 南海泉北線「泉ヶ丘」駅歩31分■土地面積: 148.59㎡■建築面積: 126.69㎡■格局: 5LDK
-
堺市中区深阪2丁
看房活動開展中,近鄰多種商業設施,生活便利
■房產類型:中古一戶建■房產售價: 900萬日元■地址: 堺市中区深阪2丁■交通: 南海泉北線「泉ヶ丘」駅歩24分■土地面積: 73.65㎡■建築面積: 79.68㎡■格局: 5DK
-
堺市中区深阪4丁
令和7年9月裝修・看房活動開展中,超市・教育設施步行圈內,生活便利
■房產類型:中古一戶建■房產售價: 1,498萬日元■地址: 堺市中区深阪4丁■交通: 南海泉北線「泉ヶ丘」駅歩24分■土地面積: 62.48㎡■建築面積: 107.02㎡■格局: 4LDK
-
堺市中区深阪4丁
室內乾淨・看房活動開展中,近鄰多種商業設施,生活便利
■房產類型:中古一戶建■房產售價: 2,278萬日元■地址: 堺市中区深阪4丁■交通: 南海泉北線「泉ヶ丘」駅歩20分■土地面積: 75.89㎡■建築面積: 95.85㎡■格局: 4LDK
-
堺市中区深阪6丁
2024年12月建造・未入住物件・看房活動開展中,超市步行6分,購物方便,步入式衣帽間,即刻入住可
■房產類型:新建一戶建■房產售價: 2,988萬日元■地址: 堺市中区深阪6丁■交通:南海泉北線「泉ヶ丘」駅歩20分■土地面積: 94.52㎡■建築面積: 114.59㎡■格局: 4LDK
-
堺市中区八田北町
店鋪式住宅・看房活動開展中,可經營飲食店,購物中心步行圈內,購物方便
■房產類型:店鋪・事務所住宅■房產售價: 590萬日元■地址: 堺市中区八田北町■交通: 南海泉北線「深井」歩19分■土地面積: 35.90㎡■建築面積: 62.08㎡■格局: 2DK+店鋪
-
堺市中区深井北町
換房東物件・表面利潤回利10.15%,室內幹淨漂亮,超市・教育設施步行圈內
■房產類型:收益物件■房產售價: 650萬日元■地址: 堺市中区深井北町■交通: 南海泉北線「深井」歩20分■土地面積: 43.55㎡■建築面積: 47.46㎡■格局: 2LDK
堺市北区的房產
-
堺市北区南花田町 1期 1号棟
2026年3月建造,超市・藥局・便利店・公園步行圈內,嫻靜的住宅地
■房產類型:新建一戶建■房產售價: 4,598萬日元 ■地址:堺市北区南花田町■交通:大阪メトロ御堂筋線「新金岡」駅歩20分■土地面積: 103.25㎡■建築面積: 98.95㎡■格局:4LDK
-
堺市北区南花田町 1期 3号棟
2026年3月建造,超市・藥局・便利店・公園步行圈內,嫻靜的住宅地
■房產類型:新建一戶建■房產售價: 4,698萬日元 ■地址:堺市北区南花田町■交通:大阪メトロ御堂筋線「新金岡」駅歩20分■土地面積: 97.05㎡■建築面積: 101.64㎡■格局:4LDK
-
堺市北区南花田町 2号棟
新建戶建4LDK,超市・藥局・便利店・公園步行圈內,嫻靜的住宅地
■房產類型:新建一戶建■房產售價: 4,798萬日元 ■地址:堺市北区南花田町■交通:大阪メトロ御堂筋線「新金岡」駅歩20分■土地面積: 97.47㎡ ■建築面積: 100.40㎡■格局:4LDK



