高石市千代田3丁目
| 房屋信息 | |
|---|---|
| 房產類型 | 中古一戶建 |
| 房產編號 | 123901 |
| 房產售價 | 1,578萬日元 |
| 地址 | 高石市千代田3丁目 |
| 交通 | 南海本線「高石」歩9分 南海本線「北助松」歩11分 |
| 土地面積 | `54.09㎡ |
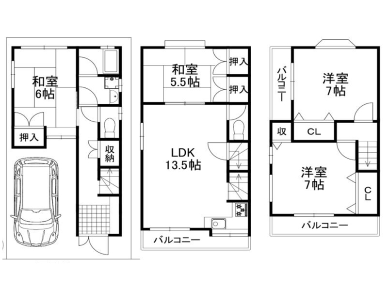
| 建物面积 | 103.27㎡ |
| 構造 | 木・鋼架造3階建 |
| 格局 | 4LDK |
| 用途地域 | 第2種住居地域 |
| 都市計劃 | 市街化區域 |
| 地目 | 宅地 |
| 地勢 | 平坦 |
| 建築率 | 60% |
| 容積率 | 180% |
| 國土法屆出 | 不要 |
| 權利 | 永久權 |
| 交易形態 | 中介 |
| 備註1 | セブンイレブン歩5分、サンディ歩8分、コノミヤ・アプラたかいし歩9分 |
| 備註2 | 私道負擔11.99㎡ |



