大阪市東住吉区山坂5丁目
| 房屋信息 | |
|---|---|
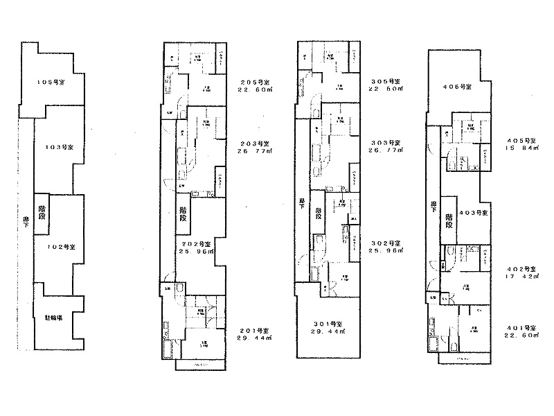
| 房產類型 | 收益公寓 |
| 房產編號 | 128143 |
| 房產售價 | 11,100萬日元 |
| 地址 | 大阪市東住吉区山坂5丁目 |
| 交通 | JR阪和線「鶴ヶ丘」歩5分 地下鉄御堂筋線「西田辺」歩10分 |
| 土地面積 | 171.90㎡ |
| 建築面積 | 409.28㎡ |
| 构造 | 铁骨造4层建 |
| 格局 | 16室 |
| 用途地域 | 第2種中高層住居專用地域 |
| 都市計劃 | 市街化区域 |
| 地目 | 宅地 |
| 建蔽率 | 60% |
| 容積率 | 200% |
| 國土法屆出 | 不要 |
| 權利 | 永久權 |
| 交易形態 | 中介 |
| 備註1 | セブンイレブン歩5分、ライフ歩6分、サンディ歩9分 |
| 備註2 | 月額842,660萬日元・年額10,111,920萬日元,租賃中 |



